PLAN間取り
- トップ
- 間取り
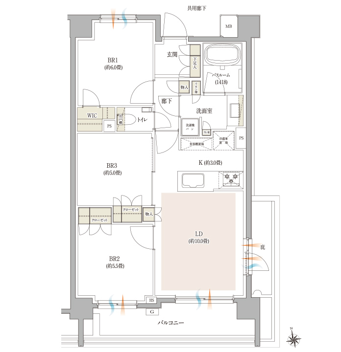
ETYPE
3LDK+2WIC
- 専有面積: 70.55㎡
- バルコニー面積:10.27㎡
- 室外機置場面積:2.29㎡
- 南西角住戸3LDKプラン。
- 1418サイズのバスルーム。
- 玄関からリビング・ダイニングが直接見えないよう
プライバシーにも配慮した設計。

LD:リビング・ダイニング K:キッチン BR:ベッドルーム
WIC:ウォークインクローゼット
PS:パイプスペース MB:メーターボックス
HS:住戸内パイプスペース(畳数に含まれる配管スペース) MB:メーターボックス
H2TYPE
2LDK+2WIC+SIC
- 専有面積: 55.96㎡
- バルコニー面積:7.09㎡
- 南向き2LDKプラン。
- 作業効率の良いL字タイプのキッチン。
- WICやSICをはじめ、
随所に収納スペースを設置。

LD:リビング・ダイニング K:キッチン BR:ベッドルーム
WIC:ウォークインクローゼット SIC:シューズインクローク
PS:パイプスペース MB:メーターボックス
HS:住戸内パイプスペース(畳数に含まれる配管スペース) MB:メーターボックス
JTYPE
3LDK+2WIC+SIC
- 専有面積: 70.19㎡
- バルコニー面積:9.15㎡
- 室外機置場面積:2.88㎡
- 3面開口の南東角住戸3LDKプラン。
- 2つのウォークインクローゼットをはじめ、
随所に収納スペースを設置。 - 1418サイズのバスルーム。

LD:リビング・ダイニング K:キッチン BR:ベッドルーム
WIC:ウォークインクローゼット SIC:シューズインクローク
PS:パイプスペース MB:メーターボックス
HS:住戸内パイプスペース(畳数に含まれる配管スペース) MB:メーターボックス

※共同住宅の住棟全体の性能を示すものであり、各住戸の性能を示すものではありません。
CONTACTお問い合わせ
ご来場予約いただいたお客様を
優先してご案内させていただきます。
※「モデルルーム」とは、間取りや仕様・設備などをご案内する施設全般のことで、それらの一部のみ展示している「ギャラリー」・「インフォメーションセンター」、「サンプルルーム」なども含みます。
※掲載の環境写真は2022年5月に撮影されたものです。
※掲載の室内写真は弊社マンションギャラリーを撮影したものであり、本物件とは異なります。家具・調度品等オプション仕様及び設計変更は販売価格に含まれておりません。また、一部設計変更・オプション設備が付加されており、基本プラン・仕様とは異なります。
※掲載の図面は計画段階のものであり、施工上の都合・改良等により変更する場合があります。予めご了承ください。
※方位記号には若干誤差があります。正確な方位については設計図書でご確認ください。
※掲載の表示距離は現地からの地図上の概算です。徒歩分数は80m=1分として算出し、端数は切り上げております。
※自転車分数は日中平常時の実測によるもので、交通状況により異なります。
※掲載のエントランス完成予想CGは計画段階の設計図書を基に描き起こしたもので、実際とは異なります。雨樋、エアコン室外機、給湯器、フェンス、給排気口ベントキャップ、避難ハッチ等は省略、または再現されていない設備機器等がございます。植栽は特定の季節やご入居時の状態を想定して描かれたものではございません。
※掲載のルーフバルコニー付住戸(Srタイプ)完成予想CGは図面を基に描き起こしたルーフバルコニー完成予想図に、眺望写真(現地6階相当から西側方面を2024年12月撮影)をCG合成・加工したもので、実際とは異なります。雨樋、エアコン室外機、給湯器、フェンス、給排気口ベントキャップ等は省略、または再現されていない設備機器等がございます。家具・調度品等は販売価格に含まれておりません。
※騒音や振動等、共同生活の秩序を乱す行為は禁止されています。
※ルーフバルコニーの使用には制限があります。詳細は重要事項説明書・管理規約集および管理会社へご確認ください。
※image photo記載のある写真は全てイメージです。
マンションについて
来場についてのよくあるご質問
- 小さい子供がいるのですが、ゆっくり説明は受けられますか?
- モデルルームには小さなお子様が遊べるようにキッズスペースと授乳室をご用意しています。
- どれくらい時間かかるのでしょうか?
-
2時間ほどかかります。お時間が無い場合、ご希望をお伝えいただければ時間内でご案内できます。
短時間で物件のことを要点的にご説明する30分見学コースもございます。
お忙しい方や、お仕事帰りの方にオススメの時短コースです。※一部の物件に限る - 他社で過度な営業を受けたことがあり、あまり営業をうけたくないのですが・・
- 気持ちよく見学していただけるよう、配慮のうえご案内いたします。
- 物件探しは初心者なんですが、大丈夫でしょうか?
- ご安心ください、参加者の8割は初心者です。
お気軽にお越しください!
来場いただいたお客様の声
- こちらの都合に合わせて
短い時間で案内して
いただきましたT.T様(30代 2人家族) - 時間の制約があることを伝えると、快く受けていただいたことがまず好印象でした。限られた時間内で要点を丁寧に説明していただきました。ありがとうございます。
- 大変誠実に説明していただき
感謝していますN.H様(30代 1人家族) - 他社でしつこい営業を受けたことがあり、不安でしたが、検討度合いに合わせて誠実にご案内してくださり、安心して説明を受けることができました。お若い方でしたが、オープンハウスさんは信用できる、という印象を受けました。
- 初心者でも分かりやすく
物件選びのポイントが
勉強できましたK.S様(30代 3人家族) - 物件選びに関する知識がなく不安だったのですが、購入までの流れや、探し方、図面の見方など基本的な内容を丁寧に教えていただき大変参考になりました。その後も、わからないことがあって連絡するとすぐ対応してくださって本当に感謝しています。
- 地域情報も教えていただき
大変参考になりましたR.K様(30代 4人家族) - 勤務先へのアクセス便を考え、都心に近い物件を検討していました。初めて訪れる土地でしたが、実際に街を歩きながら、治安や周辺のスーパー・飲食店や学区のことなど丁寧に説明して頂きました。おかげで住んだあとのイメージが持てました。
- 暮らしのイメージを
ふくらませることができましたT.K様(30代 1人家族) - 新築の設備仕様を体感したことによって、生活のイメージがつかめたので、希望が具体的になりました。また、自分でも気づいていない希望条件に気づくことができました。
- 複数物件を比較検討
できたので
納得のいく選択ができそうですT.Y様(20代 2人家族) - それぞれの物件のメリット・デメリットを伝えていただきました。納得いく選択をしたかったので比較検討材料が増えて参考になりました。最適な住まいの選択の機会を得られたと感じています。
見学の流れ
標準コース
物件のご説明・現地のご案内など、一通り物件のことをご説明します。
1日で物件の全容を知りたい方へオススメの標準コースです。
下記内容の中から、お客様のご希望に合わせてご案内させて頂きます。
-
立地・間取り・価格など
物件のご説明 -
建物模型のご説明
-
現地・周辺環境の
ご案内 -
モデルルームの
ご案内 -
設計変更の
ご相談 -
管理や資金の
ご相談
30分見学コース
短時間で物件のことを要点的にご説明します。
お忙しい方や、お仕事帰りの方にオススメの時短コースです。
立地・間取り・価格など
物件のご説明
建物模型のご説明

オープンハウス・ディベロップメントのマンションシリーズでは、都心の好立地に建つマンションを、適正価格でご提供する工夫を追求。不要な部分はカットし、安全面に関わる構造部分はもちろん、外観や素材の細部にまでこだわった洗練されたデザインの住空間を。
自分にとって価値ある選択をしたいというお客様に支持されています。

共用部のシンプル化で、建築コスト削減。
フィットネスやラウンジ、ゲストルームなどの共有施設の維持・管理費は購入者様が負担するものです。「都心」×「駅近」なら必要な施設は周辺に充実しています。そこで共有部分はシンプルにして、建築コストを削減。一方、住空間や外観デザイン、構造部分などには、しっかりとコストをかけています。
モデルルームの集約で、販売コスト削減。
マンションのモデルルームの建設・維持費用は、約2千万~1億円。マンション価格に上乗せされ、購入者様の負担になります。そこで、モデルルームを物件ごとに設けず、エリアごとに集約。見学のために高額な費用を負担していただくより、都心の住まいを適正価格で供給することを優先しています。

住空間を自分らしくカスタマイズできる3段階のオーダーシステムをご用意。無償の「BASIC コース」と有償の「BASICプラスコース」及び「PREMIUM コース」で、お客様1人ひとりに合わせた満足度の高い住まいをご提供します。
PREMIUM コース
理想の住空間を叶えるために、多種多様の設計プランで応じる本格的なオーダーシステムです。
専属の設計士とコーディネーターが心から満足できる住まいづくりをサポート。間取りの変更から、キッチンなどの設備のサイズ・形状変更、家具配置に合わせた照明計画のご提案まで、お客様と対話を積み重ねながら創り上げていきます。
サイズやカラーを選ぶことで、住空間をトータル・コーディネートできる無償メニューです。
キッチンカウンターの高さ、洗面台の高さを、使いやすさに応じて3段階から選択できます。また、フローリングや室内建具、収納システムの色調は、インテリアデザイナーがコーディネートした4つのスタイルから選択できます。
※住戸ごとにお申込期限があります。
※構造・建築条件により、変更不可の場合がございます。
※一部対象外の物件もございます。



















