PLAN 間取り
image photo
100㎡超の最上階プラン
+WIC+SIC+Sto
105.43㎡
バルコニー2面積 4.69m²
ルーフバルコニー面積 9.31m²
3LDKメゾネットプラン
かむろ坂向きの
9m超ワイドスパン
各居室・廊下に
豊富な収納をご用意
:床暖房
:収納
:通風
:採光
LD : リビング・ダイニング K : キッチン
BR : ベッドルーム
WIC : ウォークインクローゼット
SIC : シューズインクローク
Sto. : ストレージ
PS : パイプスペース
HS : 住戸内パイプスペース
(畳数に含まれる配管スペース)
MB : メーターボックス
かむろ坂の華やぎと共に。
+SR(納戸)+SIC
92.88㎡
各居室6畳超のゆとりある
2LDK+SRプラン
19畳超の
ワイドリビングダイニング
1616サイズの
ゆとりあるバスルーム
:床暖房
:収納
:通風
:採光
LD : リビング・ダイニング K : キッチン
BR : ベッドルーム
SR : サービスルーム(納戸)
SIC : シューズインクローク
PS : パイプスペース
HS : 住戸内パイプスペース
(畳数に含まれる配管スペース)
MB : メーターボックス
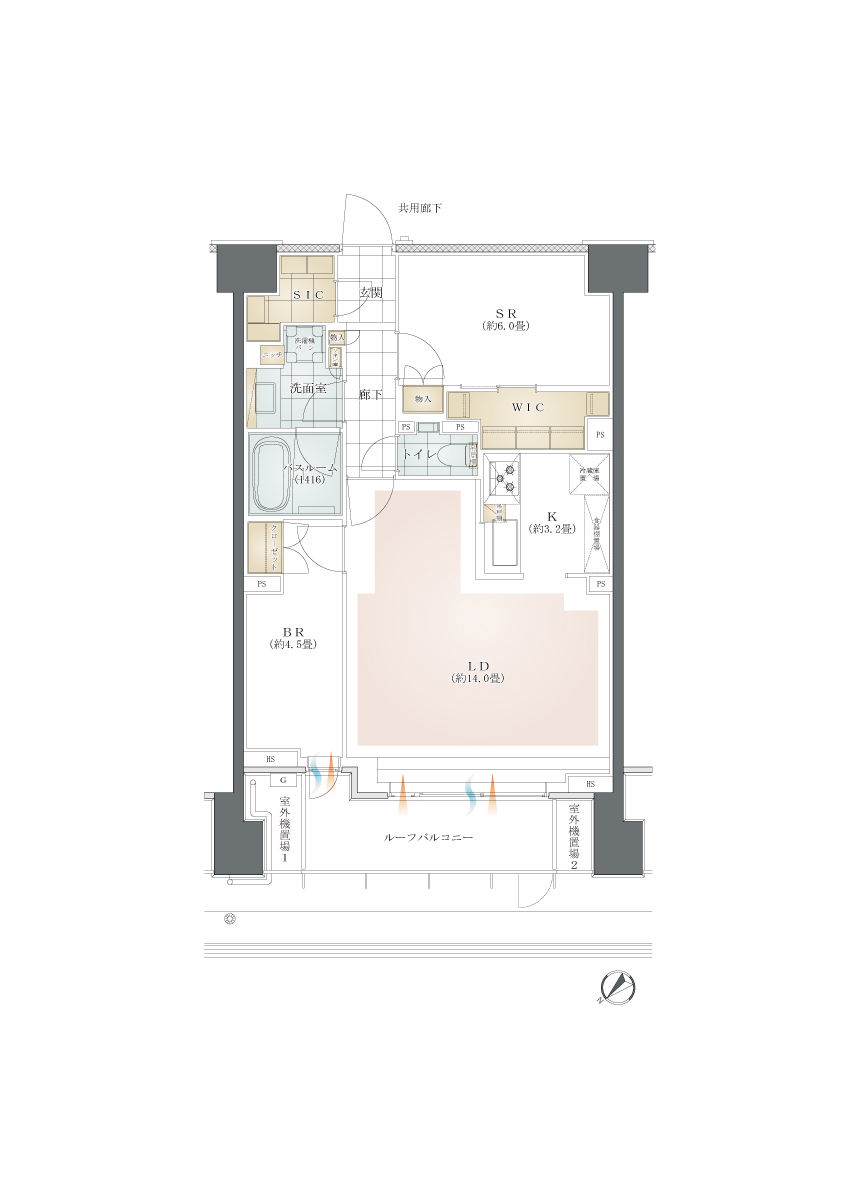
+2WIC+SIC+Sto.
専有面積 84.45㎡(約25.55坪)
バルコニー面積/12.60㎡
かむろ坂向き3LDK+SR角住戸プラン
LDとBR1の扉は開放しても使えるスライドドアを採用
シューズインクロークや2つのウォークインクローゼットなど多彩な収納
:通風 :採光
:収納 :床暖房範囲
LD : リビング・ダイニング K : キッチン
BR : ベッドルーム
SR : サービスルーム(納戸)
WIC : ウォークインクローゼット
SIC : シューズインクローク
Sto. : ストレージ
PS : パイプスペース
HS : 住戸内パイプスペース
(畳数に含まれる配管スペース)
MB : メーターボックス
専有面積 64.13㎡(約19.39坪)
バルコニー面積/8.47㎡
玄関には靴類の整理がしやすいシューズインクロークを設置
約6.0畳のサービスルームにウォークインクローゼットを設置
洗面室の2つのリネン庫など豊富な収納をご用意
:通風 :採光
:収納 :床暖房範囲
LD : リビング・ダイニング K : キッチン
BR : ベッドルーム
SR : サービスルーム(納戸)
WIC : ウォークインクローゼット
SIC : シューズインクローク
PS : パイプスペース
HS : 住戸内パイプスペース
(畳数に含まれる配管スペース)
MB : メーターボックス
専有面積 54.21㎡(約16.39坪)
バルコニー面積/7.83㎡
かむろ坂向き2LDKプラン
廊下には4つの物入れ、BR1には
ウォークインクローゼットをご用意
:通風 :採光
:収納 :床暖房範囲
LD : リビング・ダイニング K : キッチン
BR : ベッドルーム
WIC : ウォークインクローゼット
PS : パイプスペース
HS : 住戸内パイプスペース
(畳数に含まれる配管スペース)
MB : メーターボックス
専有面積 73.40㎡(約22.20坪)
バルコニー面積/11.55㎡
全室窓付きの開放感あふれる角住戸プラン
LDとBR3の扉は開放しても使えるスライドドアを採用
各洋室のクローゼットや約2.4畳のシューズインクロークなど多彩な収納
:通風 :採光
:収納 :床暖房範囲
LD : リビング・ダイニング K : キッチン
BR : ベッドルーム
SIC : シューズインクローク
PS : パイプスペース
HS : 住戸内パイプスペース
(畳数に含まれる配管スペース)
専有面積 36.85㎡(約11.14坪)
バルコニー面積/4.69㎡
廊下に2つの下足入れと物入を
ご用意
LDKとBRの扉は開放しても使えるスライドドアを採用
BRに2つのクローゼットを設置
:通風 :採光
:収納 :床暖房範囲
LDK : リビング・ダイニング・キッチン
BR : ベッドルーム
PS : パイプスペース
HS : 住戸内パイプスペース
(畳数に含まれる配管スペース)
専有面積 47.85㎡(約14.47坪)
バルコニー面積/6.09㎡
廊下面積を減らし空間効率を高めたLDK
BRは家具のレイアウトがしやすいスライドドア
BR1にはウォークインクローゼットをご用意
:通風 :採光
:収納 :床暖房範囲
LDK : リビング・ダイニング・キッチン
BR : ベッドルーム
WIC : ウォークインクローゼット
PS : パイプスペース
HS : 住戸内パイプスペース
(畳数に含まれる配管スペース)
専有面積 63.73㎡(約19.27坪)
ルーフバルコニー面積/5.73㎡
室外機置場面積/3.58㎡
約6.0畳のサービスルームを設けた広々1LDKプラン
奥行きあるシューズインクロークやウォークインクローゼット等
多彩な使い方のできる収納
:通風 :採光
:収納 :床暖房範囲
LD : リビング・ダイニング K : キッチン
BR : ベッドルーム
SR : サービスルーム(納戸)
WIC : ウォークインクローゼット
SIC : シューズインクローク
PS : パイプスペース
HS : 住戸内パイプスペース
(畳数に含まれる配管スペース)
※共同住宅の住棟全体の性能を示すものであり、各住戸の性能を示すものではありません。
来場についてのよくあるご質問
- 小さい子供がいるのですが、ゆっくり説明は受けられますか?
- モデルルームには小さなお子様が遊べるようにキッズスペースと授乳室をご用意しています。
- どれくらい時間かかるのでしょうか?
-
2時間ほどかかります。お時間が無い場合、ご希望をお伝えいただければ時間内でご案内できます。
短時間で物件のことを要点的にご説明する30分見学コースもございます。
お忙しい方や、お仕事帰りの方にオススメの時短コースです。※一部の物件に限る - 他社で過度な営業を受けたことがあり、あまり営業をうけたくないのですが・・
- 気持ちよく見学していただけるよう、配慮のうえご案内いたします。
- 物件探しは初心者なんですが、大丈夫でしょうか?
- ご安心ください、参加者の8割は初心者です。
お気軽にお越しください!
来場いただいたお客様の声
- こちらの都合に合わせて
短い時間で案内して
いただきましたT.T様(30代 2人家族) - 時間の制約があることを伝えると、快く受けていただいたことがまず好印象でした。限られた時間内で要点を丁寧に説明していただきました。ありがとうございます。
- 大変誠実に説明していただき
感謝していますN.H様(30代 1人家族) - 他社でしつこい営業を受けたことがあり、不安でしたが、検討度合いに合わせて誠実にご案内してくださり、安心して説明を受けることができました。お若い方でしたが、オープンハウスさんは信用できる、という印象を受けました。
- 初心者でも分かりやすく
物件選びのポイントが
勉強できましたK.S様(30代 3人家族) - 物件選びに関する知識がなく不安だったのですが、購入までの流れや、探し方、図面の見方など基本的な内容を丁寧に教えていただき大変参考になりました。その後も、わからないことがあって連絡するとすぐ対応してくださって本当に感謝しています。
- 地域情報も教えていただき
大変参考になりましたR.K様(30代 4人家族) - 勤務先へのアクセス便を考え、都心に近い物件を検討していました。初めて訪れる土地でしたが、実際に街を歩きながら、治安や周辺のスーパー・飲食店や学区のことなど丁寧に説明して頂きました。おかげで住んだあとのイメージが持てました。
- 暮らしのイメージを
ふくらませることができましたT.K様(30代 1人家族) - 新築の設備仕様を体感したことによって、生活のイメージがつかめたので、希望が具体的になりました。また、自分でも気づいていない希望条件に気づくことができました。
- 複数物件を比較検討
できたので
納得のいく選択ができそうですT.Y様(20代 2人家族) - それぞれの物件のメリット・デメリットを伝えていただきました。納得いく選択をしたかったので比較検討材料が増えて参考になりました。最適な住まいの選択の機会を得られたと感じています。
見学の流れ
標準コース
物件のご説明・現地のご案内など、一通り物件のことをご説明します。
1日で物件の全容を知りたい方へオススメの標準コースです。
下記内容の中から、お客様のご希望に合わせてご案内させて頂きます。
-
立地・間取り・価格など
物件のご説明 -
建物模型のご説明
-
現地・周辺環境の
ご案内 -
モデルルームの
ご案内 -
設計変更の
ご相談 -
管理や資金の
ご相談
30分見学コース
短時間で物件のことを要点的にご説明します。
お忙しい方や、お仕事帰りの方にオススメの時短コースです。
立地・間取り・価格など
物件のご説明
建物模型のご説明

オープンハウス・ディベロップメントのマンションシリーズでは、都心の好立地に建つマンションを、適正価格でご提供する工夫を追求。不要な部分はカットし、安全面に関わる構造部分はもちろん、外観や素材の細部にまでこだわった洗練されたデザインの住空間を。
自分にとって価値ある選択をしたいというお客様に支持されています。

共用部のシンプル化で、建築コスト削減。
フィットネスやラウンジ、ゲストルームなどの共有施設の維持・管理費は購入者様が負担するものです。「都心」×「駅近」なら必要な施設は周辺に充実しています。そこで共有部分はシンプルにして、建築コストを削減。一方、住空間や外観デザイン、構造部分などには、しっかりとコストをかけています。
モデルルームの集約で、販売コスト削減。
マンションのモデルルームの建設・維持費用は、約2千万~1億円。マンション価格に上乗せされ、購入者様の負担になります。そこで、モデルルームを物件ごとに設けず、エリアごとに集約。見学のために高額な費用を負担していただくより、都心の住まいを適正価格で供給することを優先しています。

住空間を自分らしくカスタマイズできる3段階のオーダーシステムをご用意。無償の「BASIC コース」と有償の「BASICプラスコース」及び「PREMIUM コース」で、お客様1人ひとりに合わせた満足度の高い住まいをご提供します。
PREMIUM コース
理想の住空間を叶えるために、多種多様の設計プランで応じる本格的なオーダーシステムです。
専属の設計士とコーディネーターが心から満足できる住まいづくりをサポート。間取りの変更から、キッチンなどの設備のサイズ・形状変更、家具配置に合わせた照明計画のご提案まで、お客様と対話を積み重ねながら創り上げていきます。
サイズやカラーを選ぶことで、住空間をトータル・コーディネートできる無償メニューです。
キッチンカウンターの高さ、洗面台の高さを、使いやすさに応じて3段階から選択できます。また、フローリングや室内建具、収納システムの色調は、インテリアデザイナーがコーディネートした4つのスタイルから選択できます。
※住戸ごとにお申込期限があります。
※構造・建築条件により、変更不可の場合がございます。
※一部対象外の物件もございます。





